Dom Przyjazny
Obiekt ten powstał w wyniku przebudowy istniejącego budynku z lat 60-tych. Projektując obiekt starano się zachować formę i kompozycję urbanistyczną z uwzględnieniem tradycji lokalnej i stylu budownictwa miejscowego. Projektowany obiekt jest rozwiązaniem oryginalnym, dostosowanym do konkretnej lokalizacji, wprowadzającym najnowsze rozwiązania architektoniczno-budowlane.
- Inwestor : Prywatny
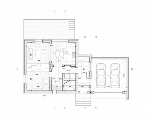
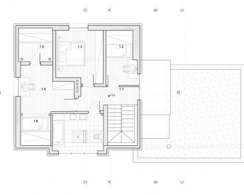
- Powierzchnia użytkowa : 138,49 m²
- Powierzchnia zabudowy : 146,30 m²
- Kubatura : 530,00 m
- Typ : jednorodzinny
